Mieszkanie na sprzedaż

Bydgoszcz, Bartodzieje Małe

3 pokoje
57.00 m²
9 105,26 zł/m2
2
SED-MS-1435

519 000PLN

Szczegóły oferty

Symbol oferty SED-MS-1435
Powierzchnia 57,00 m²
Liczba pokoi 3
Liczba sypialni 2
Rodzaj budynku blok
Technologia budowlana wielka płyta
Standard
Piętro 2
Liczba pięter w budynku 4
Stan lokalu po generalnym remoncie
Okna PCV
Instalacje nowe
Balkon jest
Liczba balkonów 1
Rok budowy 1970
Widok na inne budynki
Gaz brak
Woda ciepła - miejska
Dojazd ASFALTOWA
Otoczenie osiedle
Ogrzewanie C.O. miejskie
Usytuowanie dwustronne
Drzwi antywłamaniowe tak
Magdalena Jaskulska-Witkowska

Magdalena Jaskulska-Witkowska

Pośrednik w Obrocie Nieruchomościami

Napisz wiadomość 45 Ofert

Opis nieruchomości

Z przyjemnością przedstawiam Państwu przestronne mieszkanie w przyjemnej lokalizacji, o powierzchni 57 m2 znajdujące się przy ul. Spokojnej na Bartodziejach Małych w Bydgoszczy .

Mieszkanie usytuowane jest na 2  piętrze w 4 piętrowym zadbanym bloku.

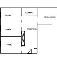
Powierzchnia mieszkania to 57 m2 i składa się z:
- salon pow. ok 17m2 z wyjściem na ustawny balkon
- sypialnia pow. ok 11m2
- sypialnia pow. ok 10m2
- łazienka - prysznic, umywalka, wc o pow. ok 3m2
- kuchnia pow. ok 8m2
- przedpokój pow. 12m2

Do lokalu przynależy piwnica.


Obecnie w mieszkaniu rozpoczęły się prace remontowe, mieszkanie będzie wykończone pod klucz.
W galerii znajdują się zdjęcia z innych realizacji właściciela, obrazujące standard wykończenia przedmiotowego mieszkania.
*Na tym etapie klient może wdrożyć jeszcze swoje koncepcje - kolorystyka elementów wykończeniowych, w tym zabudowy kuchennej, łazienki itp.


STANDARD WYKOŃCZENIA
Mieszkanie po kapitalnym remoncie:

- nowa instalacja elektryczna;
- nowa instalacja hydrauliczna;
- nowe meble kuchenne pod wymiar;
- nowe gładzie;
- nowa łazienka kompletnie wyposażona;
- nowe podłogi - bardzo grube panele (1 cm) odporne na ścieranie i wilgoć (standard AC-6):
- nowe oświetlenie;
- nowe stolarka drzwiowa
- nowy sprzęt AGD


Kuchnia wraz ze sprzętem AGD. Sprzęt AGD nowy na gwarancji!

 

Rewelacyjna lokalizacja. Sąsiedztwo charakteryzuje się spokojem oraz dostępnością wielu punktów potrzebnych do codziennego życia dla modelu rodziny z dzieckiem. Bardzo dobrze rozwinięta komunikacja miejska, liczne przystanki tramwajowe i autobusowe. Plac zabaw dla dzieci. Liczne miejsca parkingowe wokół. Szybki dojazd do Centrum.
W okolicy wiele sklepów: Aldi, Lidl, Biedronka, targowisko, punkty usługowo – handlowe i gastronomiczne, medyczne, szkoła, przedszkole, żłobek.



Prezentowane mieszkanie, może stać się miejscem dla singla, pary, rodziny z dziećmi bądź też bądź inwestycyjnie pod wynajem.


Zainteresowała Cię ta oferta? Chcesz poznać więcej szczegółów bądź umówić się na prezentację?
Zapraszam do kontaktu :)


Magdalena Jaskulska-Witkowska
Pośrednik w Obrocie Nieruchomościami
Licencja nr 30113

tel: 789 564 900
mail: magdalenajaskulskawitkowska@sednonieruchomosci.pl
www.sednonieruchomosci.pl
https://www.instagram.com/sednonieruchomosci/
https://www.tiktok.com/@sedno_nieruchomosci

https://www.facebook.com/profile.php?id=10008913796282

Sedno Nieruchomości współpracuje z najlepszymi firmami w zakresie usług finansowych, znajdując dla Państwa najlepsze indywidualne rozwiązania finansowania zakupu nieruchomości oraz zapewnia niezawodną, bezpośrednią i priorytetową obsługę Państwa w renomowanej kancelarii notarialnej oraz prawnej a także do Państwa usług są nasi specjaliści ds. podatkowych, geodezyjnych oraz budowlanych.
Dokładamy wszelkich starań aby informacje dotyczące nieruchomości były możliwie rzetelne, aktualne i kompletne natomiast w związku z tym że pochodzą one od osób trzecich firma Sedno Nieruchomości nie ponosi odpowiedzialności za ich dokładność.
Niniejsza informacja nie stanowi oferty w rozumieniu Kodeksu Cywilnego
.

Pośrednik w Obrocie Nieruchomościami

Proszę wprowadzić poprawne imię i nazwisko
Proszę wprowadzić poprawny numer telefonu
Proszę wprowadzić poprawny adres e-mail
Proszę zaznaczyć wymagane zgody
Rozwiąż równanie:
20 8
Niepoprawny wynik