Mieszkanie na sprzedaż

Bydgoszcz, Bocianowo

3 pokoje
63.00 m²
5 222,22 zł/m2
3
SED-MS-1232

329 000PLN

Szczegóły oferty

Symbol oferty SED-MS-1232
Powierzchnia 63,00 m²
Liczba pokoi 3
Rodzaj budynku kamienica
Technologia budowlana cegła
Piętro 3
Liczba pięter w budynku 3
Stan lokalu do remontu
Mies. czynsz admin. 504 PLN
Instalacje niewymienione
Widok na inne budynki
Gaz brak
Woda jest
Dojazd ASFALTOWA
Otoczenie centrum miasta
Ogrzewanie C.O. miejskie
Usytuowanie dwustronne
Magdalena Jaskulska-Witkowska

Magdalena Jaskulska-Witkowska

Pośrednik w Obrocie Nieruchomościami

Napisz wiadomość 58 Ofert

Opis nieruchomości

Świetna oferta inwestycyjna! Mieszkanie do remontu z ogromnym potencjałem!!

Oferta sprzedaży mieszkania 3 pokojowego mieszczącego się w centrum Bydgoszczy, lokal usytuowany jest na 3 piętrze w zrewitalizowanej kamienicy, jego powierzchnia użytkowa to 63 m2.

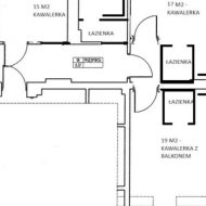
Mieszkanie zostało przygotowane i podzielone na trzy osobne nie przechodnie mieszkania, co jest trafną opcją inwestycyjną dając 3 niezależne kawalerki na wynajem.

Kolejna opcja prezentowanej inwestycji to mieszkanie 3 pokojowe - 2 sypialnie i pokój dzienny z aneksem kuchennym bądź 2 pokoje i oddzielna kuchnia. Możliwości jest wiele a potencjał ogromny!


Lokale są w stanie do remontu, zdjęcia w ofercie przedstawiają stan obecny, ponadto załączone są wizualizacje pomieszczenia łazienki i kuchni by przybliżyć wizualnie możliwości aranżacyjne.
Na ostatnim zdjęciu rzut rozmieszczenia pomieszczeń.

**Współpracujemy z ekipą remontową która, wykonać  może generalny remont.**


Kamienica zarządzana przez prężnie działającą wspólnotę mieszkaniową. 

W budynku zostało wykonane wiele prac związanych z wymianą poszczególnych elementów infrastruktury budynku:

- wymiana pionów kanalizacyjnych
- nowa instalacja C.O i C.W.U
- ocieplenie i wymiana dachu
- odnowienie klatek schodowych
 I wiele innych ..


W pobliżu: 
- Dworzec PKP 6 min
- Szkoła Podstawowa 2 min
- Uczelnia 3 min
- Stary rynek 10 min

ponadto dostępne w okolicy: Szpital, Szkoła, Przedszkole, Restauracja, Bank, Fitness, Uczelnia, Sklep, Żłobek, Apteka, Bar, Kościół, Plac zabaw .Komunikacja: autobus, tramwaj

Jeśli ogłoszenie nie jest tym czego szukasz, mamy w swojej ofercie jeszcze wiele mieszkań do sprzedania w ogłoszeniach i nie tylko,  zadzwoń na pewno posiadamy lokal który spełni każde oczekiwania.

 

Zapraszam do kontaktu :)

Magdalena Jaskulska-Witkowska
Pośrednik w Obrocie Nieruchomościami
Licencja nr 30113

tel: 789 564 900
mail: magdalenajaskulskawitkowska@sednonieruchomosci.pl
www.sednonieruchomosci.pl
https://www.instagram.com/sednonieruchomosci/
https://www.tiktok.com/@sedno_nieruchomosci

https://www.facebook.com/profile.php?id=10008913796282

Sedno Nieruchomości współpracuje z najlepszymi firmami w zakresie usług finansowych, znajdując dla Państwa najlepsze indywidualne rozwiązania finansowania zakupu nieruchomości oraz zapewnia niezawodną, bezpośrednią i priorytetową obsługę Państwa w renomowanej kancelarii notarialnej oraz prawnej a także do Państwa usług są nasi specjaliści ds. podatkowych, geodezyjnych oraz budowlanych.
Dokładamy wszelkich starań aby informacje dotyczące nieruchomości były możliwie rzetelne, aktualne i kompletne natomiast w związku z tym że pochodzą one od osób trzecich firma Sedno Nieruchomości nie ponosi odpowiedzialności za ich dokładność.
Niniejsza informacja nie stanowi oferty w rozumieniu Kodeksu Cywilnego.

Podobne oferty

Mieszkanie na sprzedaż

Bydgoszcz, Bocianowo

2 Pokoje 43 m2 6 744,19 zł

Pośrednik w Obrocie Nieruchomościami

Proszę wprowadzić poprawne imię i nazwisko
Proszę wprowadzić poprawny numer telefonu
Proszę wprowadzić poprawny adres e-mail
Proszę zaznaczyć wymagane zgody
Rozwiąż równanie:
12 1
Niepoprawny wynik