Mieszkanie na sprzedaż Bydgoszcz, Okole

2 pokoje
43.74 m²
6 835,85 zł/m2
1 piętro
SED-MS-1531

299 000 zł

Mieszkanie na sprzedaż

szczegoly.oferty

Symbol oferty SED-MS-1531
Powierzchnia 43,74 m²
Powierzchnia użytkowa [m2] 43,73 m²
Liczba pokoi 2
Liczba sypialni 1
Rodzaj budynku kamienica
Standard
Opłaty w czynszu wywóz nieczystości, woda, sprzątanie, gaz, Części wspólne, CO, fundusz remontowy
Opłaty wg liczników prąd
Piętro 1
Liczba pięter w budynku 1
Stan lokalu do wprowadzenia
Okna PCV
Balkon brak
Rok budowy 1950
Widok na inne budynki
Otoczenie zabudowa jednorodzinna
Umeblowanie tak
Usytuowanie jednostronne
Drzwi antywłamaniowe tak
Pomieszczenia
Typ kuchni aneks kuchenny połączony z jadalnią i salonem
Rodzaj kuchni aneks kuchenny
Wyposażenie łazienki WC, umywalka, lustro, kabina prysznicowa
Magdalena Jaskulska-Witkowska

Magdalena Jaskulska-Witkowska

Pośrednik w Obrocie Nieruchomościami
licencja: 30113

napisz.wiadomosc 39 ofert

opis.nieruchomosci

Świetna oferta inwestycyjna i nie tylko, zapraszam do zapoznania się z jej treścią

Z ogromną przyjemnością przedstawiam Państwu funkcjonalne mieszkanie o powierzchni 43,74m2. Przedmiotowa nieruchomość znajduje się w  ścisłym centrum Bydgoszczy przy ul. Jackowskiego


Mieszkanie usytuowane jest na 1 piętrze  wyremontowanej kamienicy.

Mieszkanie o powierzchni 43,74m2 składa się z:
- salon z aneksem kuchennym
- sypialnia
- łazienka z wc i prysznicem
- przedpokój


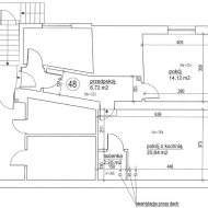
W ofercie przedstawiony jest rzut rozmieszczenia pomieszczeń.


Standard techniczny lokalu przy sprzedaży

Lokal sprzedawany są w stanie pod klucz  – jego wyposażenia widoczne w galerii w cenie.
Ponadto w każdym lokalu wykonano m.in.:
- Wszystkie nowe instalacje – elektryczne, hydrauliczne, grzewcze, telewizyjne i internetowe
- Gładzie i malowanie na biało
- Położone nowe panele
- Płytki w łazienkach z nową armaturą
- Meble kuchenne w zabudowie
- nowa stolarka drzwiowa i okienna

Status prawny - pełna własność z wyodrębnioną KW.


Świetna lokalizacja w centrum miasta, jednocześnie na uboczu w kameralnie usytuowanej kamienicy. 



Prezentowana nieruchomość, jest interesującą ofertą  w dobrej lokalizacji i może stać się idealnym  tematem inwestycyjnym pod wynajem i nie tylko.

Gorąco polecam tą wyjątkową nieruchomość i zapraszam do prezentacji.

Magdalena Jaskulska-Witkowska
Pośrednik w Obrocie Nieruchomościami
Licencja nr 30113

tel: 789 564 900
mail: magdalenajaskulskawitkowska@sednonieruchomosci.pl
www.sednonieruchomosci.pl
https://www.instagram.com/sednonieruchomosci/
https://www.tiktok.com/@sedno_nieruchomosci

https://www.facebook.com/profile.php?id=10008913796282

Sedno Nieruchomości współpracuje z najlepszymi firmami w zakresie usług finansowych, znajdując dla Państwa najlepsze indywidualne rozwiązania finansowania zakupu nieruchomości oraz zapewnia niezawodną, bezpośrednią i priorytetową obsługę Państwa w renomowanej kancelarii notarialnej oraz prawnej a także do Państwa usług są nasi specjaliści ds. podatkowych, geodezyjnych oraz budowlanych.
Dokładamy wszelkich starań aby informacje dotyczące nieruchomości były możliwie rzetelne, aktualne i kompletne natomiast w związku z tym że pochodzą one od osób trzecich firma Sedno Nieruchomości nie ponosi odpowiedzialności za ich dokładność.
Niniejsza informacja nie stanowi oferty w rozumieniu Kodeksu Cywilnego.

podobne.oferty

Mieszkanie na sprzedaż

Bydgoszcz, Okole

3 pokoje 55 m2 5 818,18 zł/m2

Mieszkanie na sprzedaż

Bydgoszcz, Okole

2 pokoje 26 m2 12 111,54 zł/m2

Mieszkanie na sprzedaż

Bydgoszcz, Okole

2 pokoje 41 m2 8 753,66 zł/m2
Oferta specjalna

Mieszkanie na sprzedaż

Bydgoszcz, Okole

2 pokoje 26 m2 11 631,18 zł/m2
Oferta specjalna

Pośrednik w Obrocie Nieruchomościami

Proszę wprowadzić poprawne imię i nazwisko
Proszę wprowadzić poprawny numer telefonu
Proszę wprowadzić poprawny adres e-mail
zaznacz.pole
rozwiaz.rownanie:
26 2
niepoprawny.wynik