Mieszkanie na sprzedaż

Bydgoszcz, Szwederowo

3 pokoje
51.50 m²
7 941,75 zł/m2
1
SED-MS-1305

409 000PLN

Szczegóły oferty

Symbol oferty SED-MS-1305
Powierzchnia 51,50 m²
Powierzchnia użytkowa [m2] 51,50 m²
Liczba pokoi 3
Liczba sypialni 3
Rodzaj budynku kamienica
Technologia budowlana cegła
Standard
Piętro 1
Liczba pięter w budynku 2
Stan lokalu do wprowadzenia
Okna PCV
Instalacje nowe
Balkon brak
Widok na podwórko
Gaz jest
Woda ciepła - piecyk gazowy
Dojazd ASFALTOWA
Otoczenie centrum miasta
Ogrzewanie C.O. GAZOWE
Drzwi antywłamaniowe tak
Magdalena Jaskulska-Witkowska

Magdalena Jaskulska-Witkowska

Pośrednik w Obrocie Nieruchomościami

Napisz wiadomość 70 Ofert

Opis nieruchomości

Z ogromną przyjemnością przedstawiam Państwu  bardzo funkcjonalne i przestronne mieszkanie o powierzchni 51,5m2   znajdujące się w dzielnicy Szwederowo w Bydgoszczy .

Mieszkanie usytuowane jest na 1 piętrze ocieplonej kamienicy.  Wszystkie instalacje nowe.
Powierzchnia użytkowa to 51,5m2

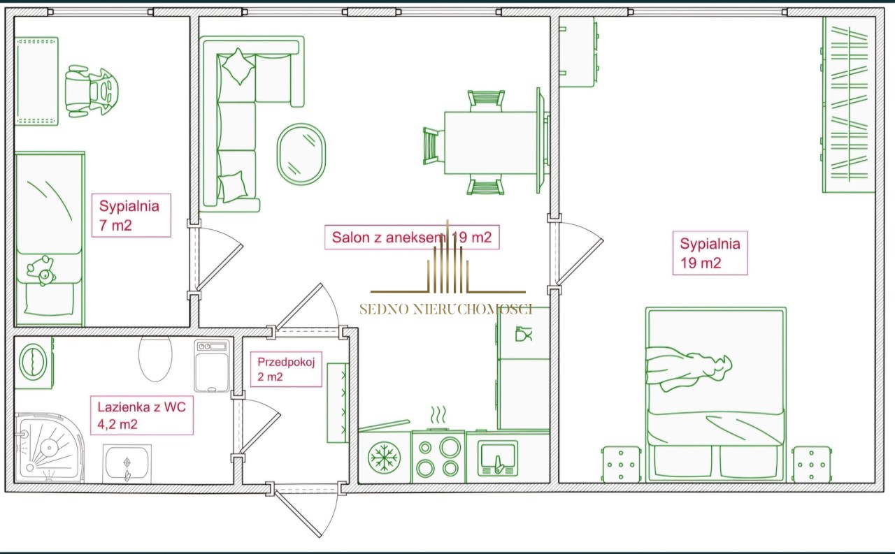
Mieszkanie składa się z:
- Salon z aneksem kuchennym pow. 19m2
- Sypialnia pow. 19m2
- Sypialnia pow. 7m2 
- Łazienka  z wc pow. 4,2m2
- Przedpokój pow. 2m2

Do mieszkania przynależy piwnica i komórka lokatorska

Remont obejmował całkowitą rewitalizację:

- nowe instalacje;
- nowe podłogi;
- nowe gładzie;
- nowa kuchnia:
- nowa łazienka;
- nowe oświetlenie;
- nowe drzwi 
i wiele, wiele innych!

 

Atuty:

- bardzo dobra lokalizacja;
- mieszkanie po remoncie, łącznie z instalacjami;
-  nowe okna
- dobry rozkład
- bardzo przestronne 
- duża łazienka z wygodną  wanną!
- kompletna nowa kuchnia;
- możliwość personalizacji;
- świetnie skomunikowana
- bardzo dobra lokalizacja 

Ogrzewanie i ciepła woda z własnego, nowego kotła gazowego.

Bardzo atrakcyjna oferta zarówno dla pary lub rodziny z dzieckiem, ze względu na lokalizację dla klienta inwestycyjnego z myślą o najmie krótko bądź długoterminowym.

Świetna lokalizacja. Przedmiotowa nieruchomość zlokalizowana jest w bardzo komfortowym miejscu, żabi skok do samego serca Bydgoszczy, bliskość komunikacji miejskiej - przystanki autobusowe, tramwaj. Punkty handlowo usługowe, nieopodal Galeria Zielone Arkady i wiele innych w zasięgu ręki.


Serdecznie polecam tą nieruchomość i zapraszam do kontaktu i prezentacji

Magdalena Jaskulska-Witkowska
Pośrednik w Obrocie Nieruchomościami
Licencja nr 30113

tel: 789 564 900
mail: magdalenajaskulskawitkowska@sednonieruchomosci.pl
www.sednonieruchomosci.pl
https://www.instagram.com/sednonieruchomosci/
https://www.tiktok.com/@sedno_nieruchomosci

https://www.facebook.com/profile.php?id=10008913796282

Sedno Nieruchomości współpracuje z najlepszymi firmami w zakresie usług finansowych, znajdując dla Państwa najlepsze indywidualne rozwiązania finansowania zakupu nieruchomości oraz zapewnia niezawodną, bezpośrednią i priorytetową obsługę Państwa w renomowanej kancelarii notarialnej oraz prawnej a także do Państwa usług są nasi specjaliści ds. podatkowych, geodezyjnych oraz budowlanych.
Dokładamy wszelkich starań aby informacje dotyczące nieruchomości były możliwie rzetelne, aktualne i kompletne natomiast w związku z tym że pochodzą one od osób trzecich firma Sedno Nieruchomości nie ponosi odpowiedzialności za ich dokładność.
Niniejsza informacja nie stanowi oferty w rozumieniu Kodeksu Cywilnego.

Podobne oferty

Mieszkanie na sprzedaż

Bydgoszcz, Szwederowo

2 Pokoje 35 m2 10 197,14 zł

Mieszkanie na sprzedaż

Bydgoszcz, Szwederowo

2 Pokoje 43 m2 7 162,79 zł

Mieszkanie na sprzedaż

Bydgoszcz, Szwederowo

2 Pokoje 41 m2 12 320,99 zł

Mieszkanie na sprzedaż

Bydgoszcz, Szwederowo

2 Pokoje 40 m2 7 600,00 zł

Pośrednik w Obrocie Nieruchomościami

Proszę wprowadzić poprawne imię i nazwisko
Proszę wprowadzić poprawny numer telefonu
Proszę wprowadzić poprawny adres e-mail
Proszę zaznaczyć wymagane zgody
Rozwiąż równanie:
11 8
Niepoprawny wynik