Mieszkanie na sprzedaż

Bydgoszcz, Szwederowo

2 pokoje
38.38 m²
9 510,16 zł/m2
1
SED-MS-1394

365 000PLN

Szczegóły oferty

Symbol oferty SED-MS-1394
Powierzchnia 38,38 m²
Powierzchnia użytkowa [m2] 38,38 m²
Liczba pokoi 2
Liczba sypialni 1
Rodzaj budynku kamienica
Technologia budowlana cegła
Standard
Opłaty wg liczników gaz, prąd, woda, Woda zimna
Piętro 1
Liczba pięter w budynku 3
Piwnica [m2] 2,00 m²
Stan lokalu po generalnym remoncie
Okna PCV 3 szyby, ciepły montaż
Instalacje nowe
Rok budowy 1910
Widok na inne budynki
Gaz brak
Woda piec gazowy dwufunkcyjny
Dojazd ASFALTOWA
Ogrzewanie C.O. GAZOWE
Odl. do sklepu [m] 100 m
Odl. do szkoły [m] 500 m
Usytuowanie dwustronne
Drzwi antywłamaniowe tak
Magdalena Jaskulska-Witkowska

Magdalena Jaskulska-Witkowska

Pośrednik w Obrocie Nieruchomościami

Napisz wiadomość 70 Ofert

Opis nieruchomości

Na sprzedaż przytulne, funkcjonalne mieszkanie o powierzchni 38,38 m², zlokalizowane na 1 piętrze kameralnej, odrestaurowywanej kamienicy, znajdujące się w dzielnicy Szwederowo w Bydgoszczy .

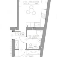
Lokal składa się z :

  • jasnego pokoju dziennego z aneksem kuchennym o pow. 20,73m2 
  • oddzielnej sypialni o pow. 9,15m2 
  • łazienki z prysznicem i wc o pow. 4,74m2
  • przedpokój o pow. 3,76m2
  • piwnica przynależna do mieszkania o pow. 2m2
Mieszkanie jest jednym z 15 lokali w budynku. Kamienica przechodzi obecnie generalny remont, którego finalne zakończenie planowane jest na wiosna 2026 roku i będzie obejmował renowację elewacji wraz z zachowaniem jej sztukaterii, modernizację części wspólnych oraz remont dachu . Na klatkach schodowych zamontowany zostanie monitoring. Dodatkowym atutem jest zadbanie o przestrzeń za budynkiem, gdzie powstaje wspólny teren rekreacyjny dla mieszkańców – idealny do odpoczynku, spotkań sąsiedzkich czy stworzenia zielonej strefy.

Przedmiotowy lokal obecnie jest w trakcie generalnego remontu. Termin realizacji remontu szacowany jest na miesiąc luty.
Na tym etapie można wdrożyć własne sugestie odnośnie realizacji. Przybliżony standard wykończenia przedstawiony w galerii, zdjęcia przedstawiają poprzednie inwestycje. 
Decydując się na tę inwestycję teraz gwarantujesz sobie zakup po ofertowej cenie bez ryzyka jej wzrostu. 


STANDARD WYKOŃCZENIA
Mieszkanie po kapitalnym remoncie:

- nowa instalacja elektryczna;
- nowa instalacja hydrauliczna;
- nowe meble kuchenne pod wymiar;
- nowe gładzie;
- nowa łazienka ;
- nowe podłogi - bardzo grube panele (1 cm) odporne na ścieranie i wilgoć (standard AC-6):
- nowe oświetlenie;
- nowa stolarka drzwiowa i okienna
- nowy sprzęt AGD


Atuty:
- bardzo dobra lokalizacja;
- mieszkanie po remoncie, łącznie z instalacjami;
-  nowe okna
- dobry rozkład
- wysokość pomieszczeń ok. 2,8m dająca dodatkową przestronność pomieszczeń
- kompletna nowa kuchnia wraz ze sprzętem AGD
- możliwość personalizacji,
- niski czynsz
 
Ogrzewanie i ciepła ze wspólnego kotła gazowego. Odrębna własność. 

Świetna lokalizacja. Przedmiotowa nieruchomość zlokalizowana jest w bardzo komfortowym miejscu, żabi skok do samego serca Bydgoszczy, bliskość komunikacji miejskiej - przystanki autobusowe, tramwaj. Punkty handlowo usługowe, nieopodal Galeria Zielone Arkady i wiele innych w zasięgu ręki.

Bardzo atrakcyjna oferta zarówno dla pary lub rodziny z dzieckiem, ze względu na lokalizację dla klienta inwestycyjnego z myślą o najmie krótko bądź długoterminowym.

Jeżeli zainteresowała cię ta oferta i potrzebujesz więcej informacji, zapraszam do kontaktu i prezentacji.


Magdalena Jaskulska-Witkowska
Pośrednik w Obrocie Nieruchomościami
Licencja nr 30113

tel: 789 564 900
mail: magdalenajaskulskawitkowska@sednonieruchomosci.pl
www.sednonieruchomosci.pl
https://www.instagram.com/sednonieruchomosci/
https://www.tiktok.com/@sedno_nieruchomosci

https://www.facebook.com/profile.php?id=10008913796282

Sedno Nieruchomości współpracuje z najlepszymi firmami w zakresie usług finansowych, znajdując dla Państwa najlepsze indywidualne rozwiązania finansowania zakupu nieruchomości oraz zapewnia niezawodną, bezpośrednią i priorytetową obsługę Państwa w renomowanej kancelarii notarialnej oraz prawnej a także do Państwa usług są nasi specjaliści ds. podatkowych, geodezyjnych oraz budowlanych.
Dokładamy wszelkich starań aby informacje dotyczące nieruchomości były możliwie rzetelne, aktualne i kompletne natomiast w związku z tym że pochodzą one od osób trzecich firma Sedno Nieruchomości nie ponosi odpowiedzialności za ich dokładność.
Niniejsza informacja nie stanowi oferty w rozumieniu Kodeksu Cywilnego.

Podobne oferty

Mieszkanie na sprzedaż

Bydgoszcz, Szwederowo

2 Pokoje 35 m2 10 197,14 zł

Mieszkanie na sprzedaż

Bydgoszcz, Szwederowo

2 Pokoje 43 m2 7 162,79 zł

Mieszkanie na sprzedaż

Bydgoszcz, Szwederowo

3 Pokoje 52 m2 7 941,75 zł

Mieszkanie na sprzedaż

Bydgoszcz, Szwederowo

2 Pokoje 40 m2 7 600,00 zł

Pośrednik w Obrocie Nieruchomościami

Proszę wprowadzić poprawne imię i nazwisko
Proszę wprowadzić poprawny numer telefonu
Proszę wprowadzić poprawny adres e-mail
Proszę zaznaczyć wymagane zgody
Rozwiąż równanie:
23 2
Niepoprawny wynik