Mieszkanie na sprzedaż

Bydgoszcz, Szwederowo

2 pokoje
31.00 m²
9 516,13 zł/m2
1
SED-MS-1393

295 000PLN

Szczegóły oferty

Symbol oferty SED-MS-1393
Powierzchnia 31,00 m²
Liczba pokoi 2
Liczba sypialni 1
Rodzaj budynku kamienica
Technologia budowlana cegła
Standard
Opłaty wg liczników gaz, prąd, woda, Woda zimna
Piętro 1
Liczba pięter w budynku 3
Piwnica [m2] 2,50 m²
Stan lokalu po generalnym remoncie
Okna PCV 3 szyby, ciepły montaż
Instalacje nowe
Balkon brak
Rok budowy 1910
Widok na podwórko
Gaz jest
Woda piec gazowy dwufunkcyjny
Dojazd ASFALTOWA
Otoczenie zabudowa mieszana
Ogrzewanie C.O. GAZOWE
Usytuowanie jednostronne
Drzwi antywłamaniowe tak
Magdalena Jaskulska-Witkowska

Magdalena Jaskulska-Witkowska

Pośrednik w Obrocie Nieruchomościami

Napisz wiadomość 70 Ofert

Opis nieruchomości

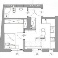
Na sprzedaż przytulne, funkcjonalne mieszkanie o powierzchni  31m², zlokalizowane na 1 piętrze kameralnej, odrestaurowywanej kamienicy, znajdujące się w dzielnicy Szwederowo w Bydgoszczy .

Lokal składa się z :

  • jasnego pokoju dziennego z aneksem kuchennym o pow. 16,45m2 
  • oddzielnej sypialni o pow. 6,03m2 
  • łazienki z prysznicem i wc o pow. 4,22m2
  • piwnica przynależna do mieszkania o pow. 2,5m2
Mieszkanie jest jednym z 15 lokali w budynku. Kamienica przechodzi obecnie generalny remont, którego finalne zakończenie planowane jest na wiosna-lato 2026 roku i będzie obejmował renowację elewacji wraz z zachowaniem jej sztukaterii, modernizację części wspólnych oraz remont dachu . Na klatkach schodowych zamontowany zostanie monitoring. Dodatkowym atutem jest zadbanie o przestrzeń za budynkiem, gdzie powstaje wspólny teren rekreacyjny dla mieszkańców – idealny do odpoczynku, spotkań sąsiedzkich czy stworzenia zielonej strefy.

Przedmiotowy lokal obecnie jest w trakcie generalnego remontu. Przedmiotowy lokal obecnie jest w trakcie generalnego remontu. Termin realizacji remontu szacowany jest na miesiąc luty.
Na tym etapie można wdrożyć własne sugestie odnośnie realizacji. Przybliżony standard wykończenia przedstawiony w galerii, zdjęcia przedstawiają poprzednie inwestycje. 
Decydując się na tę inwestycję teraz gwarantujesz sobie zakup po ofertowej cenie bez ryzyka jej wzrostu. 


STANDARD WYKOŃCZENIA
Mieszkanie po kapitalnym remoncie:

- nowa instalacja elektryczna;
- nowa instalacja hydrauliczna;
- nowe meble kuchenne pod wymiar;
- nowe gładzie;
- nowa łazienka ;
- nowe podłogi - bardzo grube panele (1 cm) odporne na ścieranie i wilgoć (standard AC-6):
- nowe oświetlenie;
- nowa stolarka drzwiowa i okienna
- nowy sprzęt AGD

Atuty:

- bardzo dobra lokalizacja;
- mieszkanie po remoncie, łącznie z instalacjami;
-  nowe okna
- dobry rozkład
- wysokość pomieszczeń ok. 2,8m dająca dodatkową przestronność pomieszczeń
- kompletna nowa kuchnia wraz ze sprzętem AGD
- możliwość personalizacji;
 

Ogrzewanie i ciepła ze wspólnego kotła gazowego. Odrębna własność. 

Świetna lokalizacja. Przedmiotowa nieruchomość zlokalizowana jest w bardzo komfortowym miejscu, żabi skok do samego serca Bydgoszczy, bliskość komunikacji miejskiej - przystanki autobusowe, tramwaj. Punkty handlowo usługowe, nieopodal Galeria Zielone Arkady i wiele innych w zasięgu ręki.

Bardzo atrakcyjna oferta zarówno dla pary lub rodziny z dzieckiem, ze względu na lokalizację dla klienta inwestycyjnego z myślą o najmie krótko bądź długoterminowym.

Jeżeli zainteresowała cię ta oferta i potrzebujesz więcej informacji, zapraszam do kontaktu i prezentacji.


Magdalena Jaskulska-Witkowska
Pośrednik w Obrocie Nieruchomościami
Licencja nr 30113

tel: 789 564 900
mail: magdalenajaskulskawitkowska@sednonieruchomosci.pl
www.sednonieruchomosci.pl
https://www.instagram.com/sednonieruchomosci/
https://www.tiktok.com/@sedno_nieruchomosci

https://www.facebook.com/profile.php?id=10008913796282

Sedno Nieruchomości współpracuje z najlepszymi firmami w zakresie usług finansowych, znajdując dla Państwa najlepsze indywidualne rozwiązania finansowania zakupu nieruchomości oraz zapewnia niezawodną, bezpośrednią i priorytetową obsługę Państwa w renomowanej kancelarii notarialnej oraz prawnej a także do Państwa usług są nasi specjaliści ds. podatkowych, geodezyjnych oraz budowlanych.
Dokładamy wszelkich starań aby informacje dotyczące nieruchomości były możliwie rzetelne, aktualne i kompletne natomiast w związku z tym że pochodzą one od osób trzecich firma Sedno Nieruchomości nie ponosi odpowiedzialności za ich dokładność.
Niniejsza informacja nie stanowi oferty w rozumieniu Kodeksu Cywilnego.

Podobne oferty

Mieszkanie na sprzedaż

Bydgoszcz, Szwederowo

2 Pokoje 35 m2 10 197,14 zł

Mieszkanie na sprzedaż

Bydgoszcz, Szwederowo

2 Pokoje 43 m2 7 162,79 zł

Mieszkanie na sprzedaż

Bydgoszcz, Szwederowo

2 Pokoje 40 m2 7 600,00 zł

Mieszkanie na sprzedaż

Bydgoszcz, Szwederowo

2 Pokoje 60 m2 5 816,67 zł

Pośrednik w Obrocie Nieruchomościami

Proszę wprowadzić poprawne imię i nazwisko
Proszę wprowadzić poprawny numer telefonu
Proszę wprowadzić poprawny adres e-mail
Proszę zaznaczyć wymagane zgody
Rozwiąż równanie:
13 7
Niepoprawny wynik