Mieszkanie na sprzedaż

Bydgoszcz, Górzyskowo

5 pokoje
124.40 m²
13 102,09 zł/m2
5
SED-MS-1542

1 629 900PLN

Szczegóły oferty

Symbol oferty SED-MS-1542
Powierzchnia 124,40 m²
Powierzchnia użytkowa [m2] 124,40 m²
Liczba pokoi 5
Liczba sypialni 4
Rodzaj budynku apartamentowiec
Standard
Opłaty w czynszu sprzątanie, ogrzewanie, monitoring, fundusz remontowy, administracja, CO, Części wspólne, woda ciepła, wywóz nieczystości
Opłaty wg liczników prąd
Piętro 5
Liczba pięter w budynku 6
Stan lokalu wysoki standard
Mies. czynsz admin. 1 500 PLN
Okna PCV
Instalacje dobre
Balkon jest
Liczba balkonów 2
Rok budowy 2021
Plac zabaw tak
Widok panorama miasta
Gaz brak
Woda ciepła - miejska
Dojazd ASFALTOWA
Otoczenie osiedle
Ogrzewanie centralne
Winda tak
Liczba wind 2
Usytuowanie dwustronne
Drzwi antywłamaniowe tak
Magdalena Jaskulska-Witkowska

Magdalena Jaskulska-Witkowska

Pośrednik w Obrocie Nieruchomościami

Napisz wiadomość 46 Ofert

Opis nieruchomości

Na sprzedaż wyjątkowy, przestronny apartament położony w jednej z najbardziej cenionych części Bydgoszczy - Górzyskowo na prestiżowym osiedlu Perłowa Dolina. Lokal usytuowany jest na 5. piętrze nowoczesnego budynku z windą, co zapewnia piękne doświetlenie wnętrz oraz przyjemny widok z okien i balkonów.

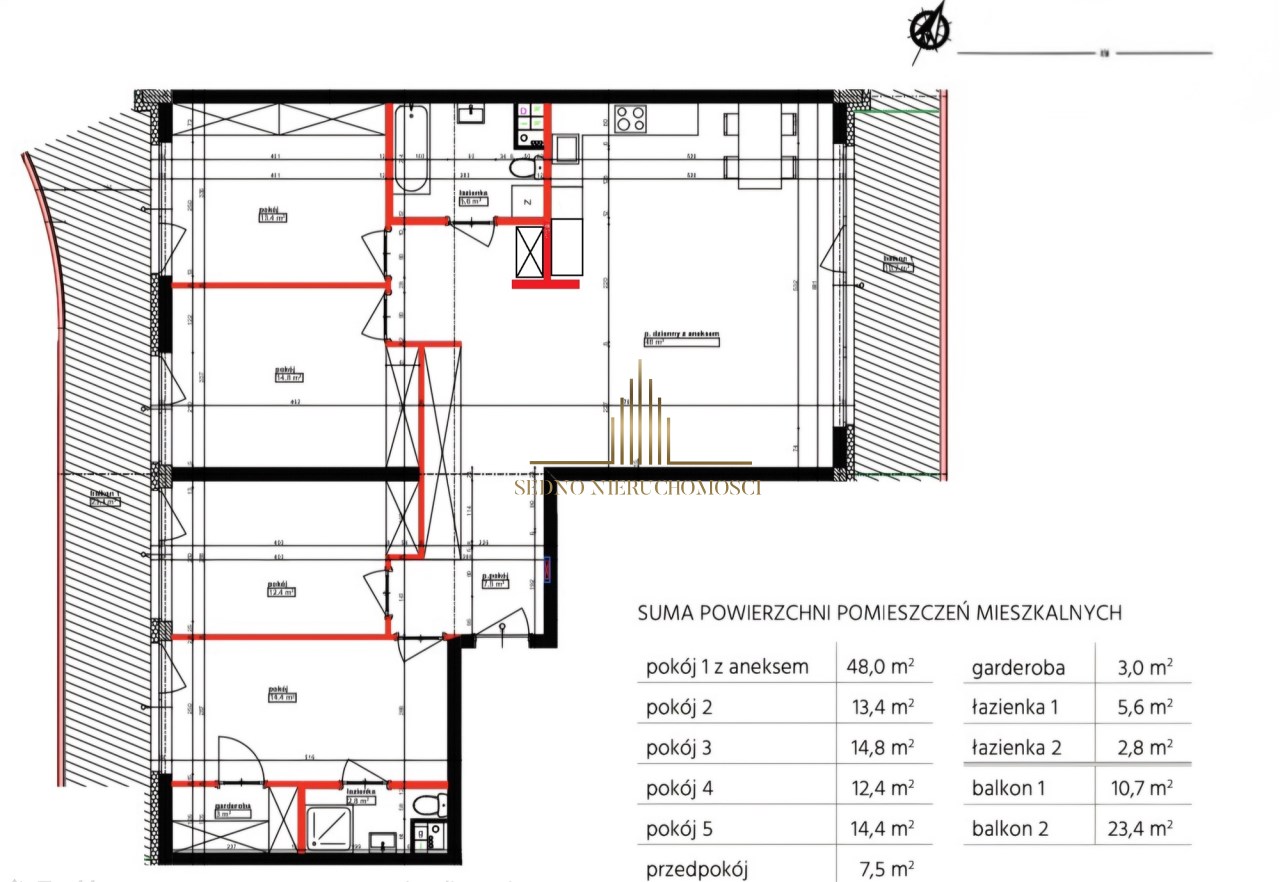
Apartament o funkcjonalnym, rodzinnym układzie składa się z:

- przestronnego salonu z aneksem kuchennym (ok. 48 m²) – serca mieszkania, idealnego do wspólnego spędzania czasu,

- czterech ustawnych sypialni, od powierzchni 12,2m2 do 14,8m2

- dwóch łazienek - większa o pow.5,8m2 z wanną, mniejsza o pow. 2,8m2 z prysznicem),

- oddzielnej garderoby o pow. 3,0m2

- komfortowego przedpokoju z miejscem do przechowywania,

- dwóch balkonów, które stanowią dodatkową przestrzeń do relaksu (powierzchnia 11m2 i 24m2)


Wnętrze zostało zaprojektowane z dbałością o detale – jasna, ponadczasowa kolorystyka, zabudowy stolarskie na wymiar oraz wysokiej jakości materiały wykończeniowe tworzą elegancką i przytulną przestrzeń. Duże przeszklenia w części dziennej zapewniają doskonałe doświetlenie przez cały dzień. Salon płynnie łączy się z częścią jadalnianą oraz nowoczesnym aneksem kuchennym z wyspą.

Dwa balkony pozwalają cieszyć się przestrzenią na świeżym powietrzu – idealne miejsce na poranną kawę lub wieczorny odpoczynek. Taras większy, z ekspozycją północno-zachodnią oraz możliwością wejścia z każdego z pokoi. Mniejszy zaś, z wejściem z salonu i ekspozycją południowo-wschodnią, skąd podziwiać można malownicze wschody słońca.
Sypialnia główna, zapewniającą pełną intymność dzięki osobistej łazience oraz garderobie.
Stolarka drzwiowa, wykonana zamówienie z drewna sosnowego. Stolarka meblowa, spersonizowana, wykonana pod indywidualne zamówienie właścicieli, fronty fornirowane, pokryte odcieniem, którego nie znajdzie się w standardowej palecie barw.
Funkcjonalna kuchnia, z licznymi szufladami i miejscem do przechowywania, bogato wyposażona w sprzęt AGD energooszczędny, wysokiej jakości: lodówka Side by Side, winiarka, zmywarka AEG  z szufladą na sztućce, mikrofalówka, piekarnik z funkcją pary, płyta indukcyjna ... Blaty kwarcowo-granitowe.

Całe wyposażenie mieszkania (poza rzeczami osobistymi i antykami ) wraz ze sprzętem AGD, tv, pralką, suszarką, szafą parową do ubrań, właściciele pozostawiają i jest uwzględnione w cenie.

W całym mieszkaniu ogrzewanie podłogowe, możliwość regulowania temperatury indywidualnie dla każdego pomieszczenia.

Do mieszkania przynależy komórka lokatorska o powierzchni 4,53m2.

Miejsca parkingowe znajdujące się w podziemnej hali garażowej - 2 szerokie miejsca, w wydzielonej wnęce, oddzielone ścianką od pozostałych, możliwość zakupu, dodatkowo płatne w kwocie 100.000zł.

Budynek monitorowany, kaskadowa konstrukcja nadaje smukłego i eleganckiego kształtu.  Klatki schodowe oraz korytarze to połączenie nowoczesności, dbałości o szczegóły oraz wysokiej jakości materiały. Teren zewnętrzny wokół budynku to przede wszystkim zieleń wpisującą się w sąsiedztwo Doliny Pięciu Stawów, malowniczego parku stanowiącego teren do spacerów i wypoczynku dla mieszkańców.

Lokalizacja na Górzyskowie gwarantuje szybki dostęp do centrum miasta, pełnej infrastruktury handlowo-usługowej, szkół, przedszkoli oraz terenów zielonych. To doskonała propozycja dla rodziny lub osób poszukujących komfortowej przestrzeni do życia w spokojnej, a zarazem dobrze skomunikowanej części miasta.

Prezentowany apartament, o nietuzinkowych wnętrzach, ma coś w sobie wyjątkowego. Rozsiadając się przy świeżo zaparzonej kawie, której aromat delikatnie otula przestrzeń, poczujesz niepowtarzalny klimat tego miejsca.


Jeżeli zainteresowała Cię ta oferta, potrzebujesz więcej informacji bądź chcesz umówić się na prezentację, jestem do Twojej dyspozycji. Zapraszam do kontaktu.

Magdalena Jaskulska-Witkowska

Pośrednik w Obrocie Nieruchomościami
Licencja nr 30113

tel: 789 564 900
mail: magdalenajaskulskawitkowska@sednonieruchomosci.pl
www.sednonieruchomosci.pl
https://www.instagram.com/sednonieruchomosci/
https://www.tiktok.com/@sedno_nieruchomosci

https://www.facebook.com/share/1NdkFd27q6/

Sedno Nieruchomości współpracuje z najlepszymi firmami w zakresie usług finansowych, znajdując dla Państwa najlepsze indywidualne rozwiązania finansowania zakupu nieruchomości oraz zapewnia niezawodną, bezpośrednią i priorytetową obsługę Państwa w renomowanej kancelarii notarialnej oraz prawnej a także do Państwa usług są nasi specjaliści ds. podatkowych, geodezyjnych oraz budowlanych.
Dokładamy wszelkich starań aby informacje dotyczące nieruchomości były możliwie rzetelne, aktualne i kompletne natomiast w związku z tym że pochodzą one od osób trzecich firma Sedno Nieruchomości nie ponosi odpowiedzialności za ich dokładność.
Niniejsza informacja nie stanowi oferty w rozumieniu Kodeksu Cywilnego.

Pośrednik w Obrocie Nieruchomościami

Proszę wprowadzić poprawne imię i nazwisko
Proszę wprowadzić poprawny numer telefonu
Proszę wprowadzić poprawny adres e-mail
Proszę zaznaczyć wymagane zgody
Rozwiąż równanie:
25 2
Niepoprawny wynik